
原理結構:分步直動活塞型、先導活塞型
流體范圍:氣、水、油、蒸汽、燃氣、腐蝕流體等
工作壓力:-0.1~0.1Mpa,0-0.3Mpa,0.6Mpa,1.6Mpa-42Mpa
流體溫度:-196℃,-100℃,-40℃,-10~80℃,+150℃,+200℃,+300℃
型號規格:DN15-800mm
連接方式:內螺紋、法蘭
閥體材質:鑄鋼、304、316、316L不銹鋼
標準電壓:AC220V、DC24V、DC12V
安裝方式:水平、垂直 控制方式:常閉式、常開式
特殊功能:F防爆型、K常開功能;S手動功能;X信號反饋
不銹鋼電磁閥是通過接收電控信號(DC12V DC24V AC110V AC220V等)后實現打開或關閉,以此達到對管道中的流體介質的通斷控制;法蘭不銹鋼電磁閥在結構上有直動式、先導式以及分步直動式等,根據應用場合的不同有常閉式、常開式,如果長時間通電可以選擇自保持式節電型。
不銹鋼電磁閥有多種連接如螺紋、法蘭、卡套、焊接、卡箍、快裝等;根據流體介質的不同有專門走水、空氣、燃氣、蒸汽以及耐各種強酸堿腐蝕的不銹鋼電磁閥。
不銹鋼304 316 316L等材質電磁閥品牌供應商-臺銘閥業,標準全不銹鋼電磁閥產品齊全,法蘭不銹鋼電磁閥廠家規格標準、型號齊全。
不銹鋼電磁閥是自動控制系統中常見的管路開關元件,被廣泛應用于石油、化工、 冶金、紡織、造船、醫療、環保及其他各工業部門的管路裝置中,完成系統中氣體、水、液體、油類等介質的自動控制,實現節能和程序控制的自動化。
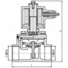
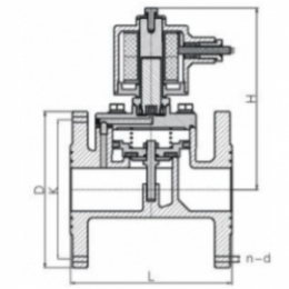
不銹鋼法蘭電磁閥外形尺寸:


| 公稱通徑 | 內螺紋 | 法蘭(單位mm) | ||||||||
| G螺紋 | L | H | 重量KG | L | H | D | K | n-d | 重量KG | |
| DN15 | G1/2 | 70 | 135 | 1.5 | 100 | 140 | φ95 | φ65 | 4-φ14 | 2.6 |
| DN20 | G3/4 | 85 | 140 | 1.7 | 110 | 145 | φ105 | φ75 | 4-φ14 | 3.2 |
| DN25 | G1 | 95 | 150 | 2 | 125 | 155 | φ115 | φ85 | 4-φ14 | 4.1 |
| DN32 | G1-1/4 | 115 | 160 | 2.7 | 140 | 160 | φ135 | φ100 | 4-φ18 | 5.5 |
| DN40 | G1-1/2 | 130 | 190 | 3.5 | 150 | 170 | φ145 | φ110 | 4-φ18 | 6.6 |
| DN50 | G2 | 145 | 205 | 3.6 | 165 | 175 | φ160 | φ125 | 4-φ18 | 8 |
| DN65 | 200 | 240 | φ180 | φ145 | 4-φ18 | 15 | ||||
| DN80 | 240 | 260 | φ190 | φ160 | 8-φ18 | 20 | ||||
| DN100 | 280 | 295 | φ215 | φ180 | 8-φ18 | 30 | ||||
| DN125 | 310 | 295 | φ145 | φ210 | 8-φ18 | 40 | ||||
| DN150 | 460 | 350 | φ280 | φ240 | 8-φ23 | 55 | ||||
| DN200 | 600 | 350 | φ335 | φ295 | 12-φ23 | 90 | ||||
不銹鋼電磁閥安裝時的注意事項:
1、安裝使用應遵守相關規定,請在本產品允許場所使用;先要檢查電磁閥是否與選型參數一致,比如電源電壓、介質壓力、壓差等,尤其是電源,如果搞錯,就會燒壞線圈;電源電壓應滿足額定電壓電壓波動范圍:交流+10%~-15%,直流+10%~-10%,平時線圈組件不宜拆開。
2、盡量不要讓電磁閥長時間處于通電狀態,這樣容易降低線圈使用壽命甚至燒壞線圈,就是說,常開、常閉電磁閥不可互換使用。
3、接管之前要對管道進行沖洗,把管道中的金屬粉末及密封材料殘留物,銹垢等清除。要注意介質的潔凈度,如果介質內混有塵垢,雜質等妨礙電磁閥的正常工作,管道中應裝過濾器或濾網。
4、一般電磁閥的電磁線圈部件應豎直向上,豎直安裝在水平于地面的管道,如果受空間限制或工況要求必須按側立安裝的,需在選型訂貨時提出;否則可能造成電磁閥不能正常工作。
5、電磁閥前后應加手動閥,同時應設旁路,便于電磁閥在故障時維護。
6、電磁閥一般是定向的,不可裝反,通常在閥體上用→指出介質流動方向,安裝時要依照→指示的方向安裝。不過在真空管路或特殊情況下可以反裝。
7、維修、保養應由具有相應技術工作的人員按的有關規定執行
溫馨提示:
本文中所有文字、數據、圖片適用于參考,需要查看更多的法蘭不銹鋼電磁閥性能參數、結構尺寸、價格等詳情請聯系我們。